Casa K
Postal
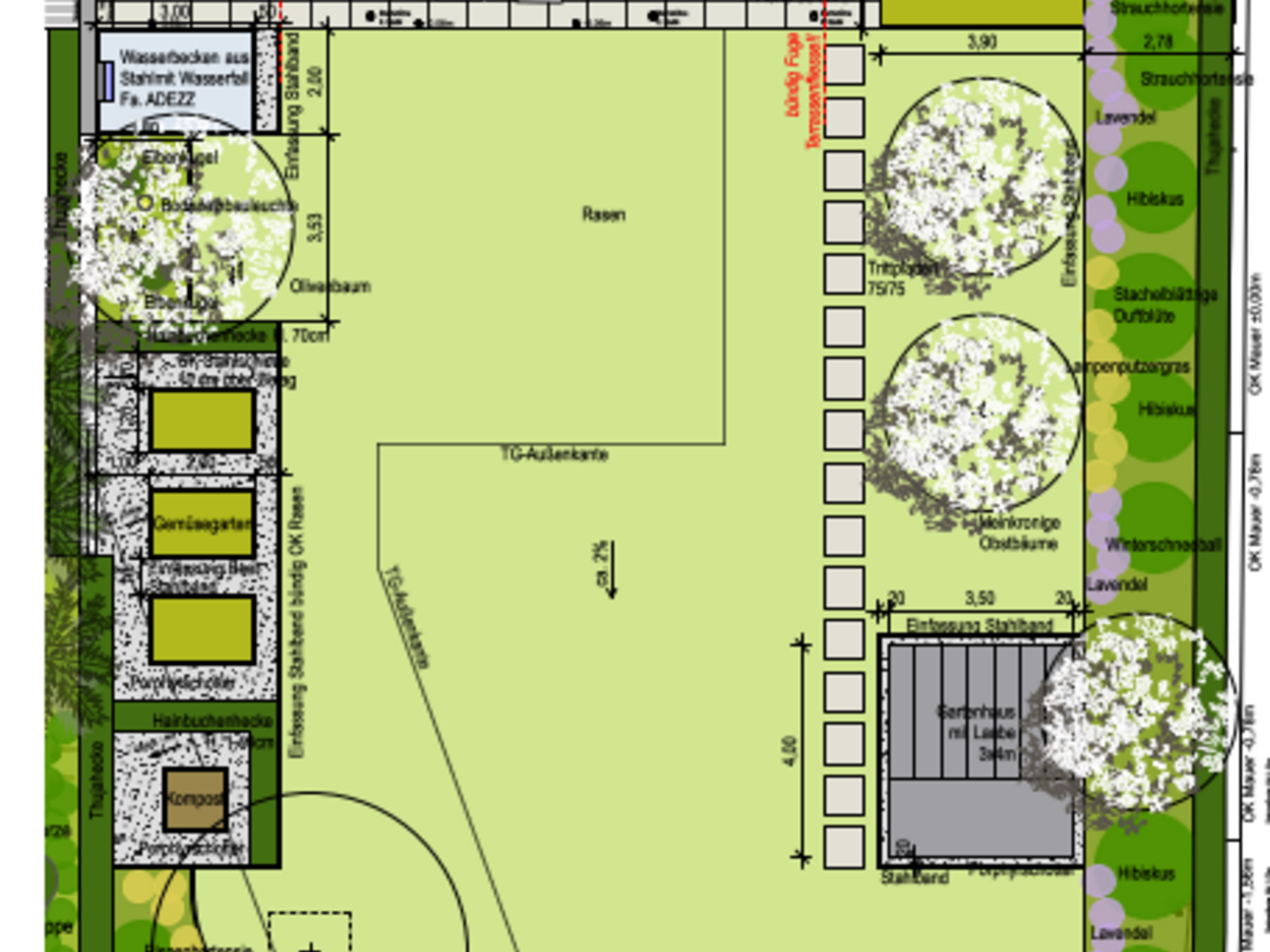
Il giardino a Casa K Postal è un giardino paesaggistico mediterraneo con la presenza vari componenti decorativi. Camminamenti in pietra naturale, fioriere rialzati, elementi d'acqua, la piantagione di ulivi e lecci esemplari, e la sapiente combinazione di specie vegetali di grandi e piccole dimensioni creano la leggerezza che definisce lo stile di questo giardino da sogno.
Committente: Privato
Prodotti: Impianto di irrigazinone automatico, Elemento di acqua in acciaio corten, fioriere rialzati in acciaio corten, camminamenti in pietra naturale, piante esemplari, erbacee e graminacee, prato a rotolo.
leggi di più








